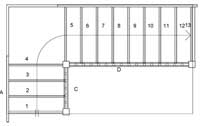
Resulta fundamental para la elaboración de una escalera conocer el hueco del que se dispone y tener claro dónde se quiere entrar y dónde salir o desembarcar.
Con ese dato podemos hacernos una idea de la forma que tendrá dicha escalera: recta (I), con un giro de 90º (L), con dos giros de 90º (U, C), caracol, etc.
La escalera se compone de peldaños, que a su vez se agrupan en tramos. Llamamos tramo a los peldaños existentes en sentido recto hasta la aparición de un giro.
La distribución de los peldaños se estudiará posteriormente y dependerá de otros factores pero sí debemos ser conscientes de la forma a emplear.
Nosotros siempre decimos que cuantos más giros más incómoda son las escaleras.
Noticias relacionadas:
Cómo mantener tu escalera de madera impecable durante años: guía práctica
Guía práctica para mantener tu escalera de madera en perfecto estado durante años. Consejos de limpieza, mantenimiento…
Escaleras de madera o de otros materiales: ¿qué opción es mejor para tu hogar?
Descubre por qué las escaleras de madera es la mejor opción en diseño, confort y durabilidad. Fabricante de escaleras…







